MODEL: APEX
County: Lee
Property Class: Residential
Status Type: New Construction
Development: LEHIGH ACRES
Furnished: Unfurnished CD
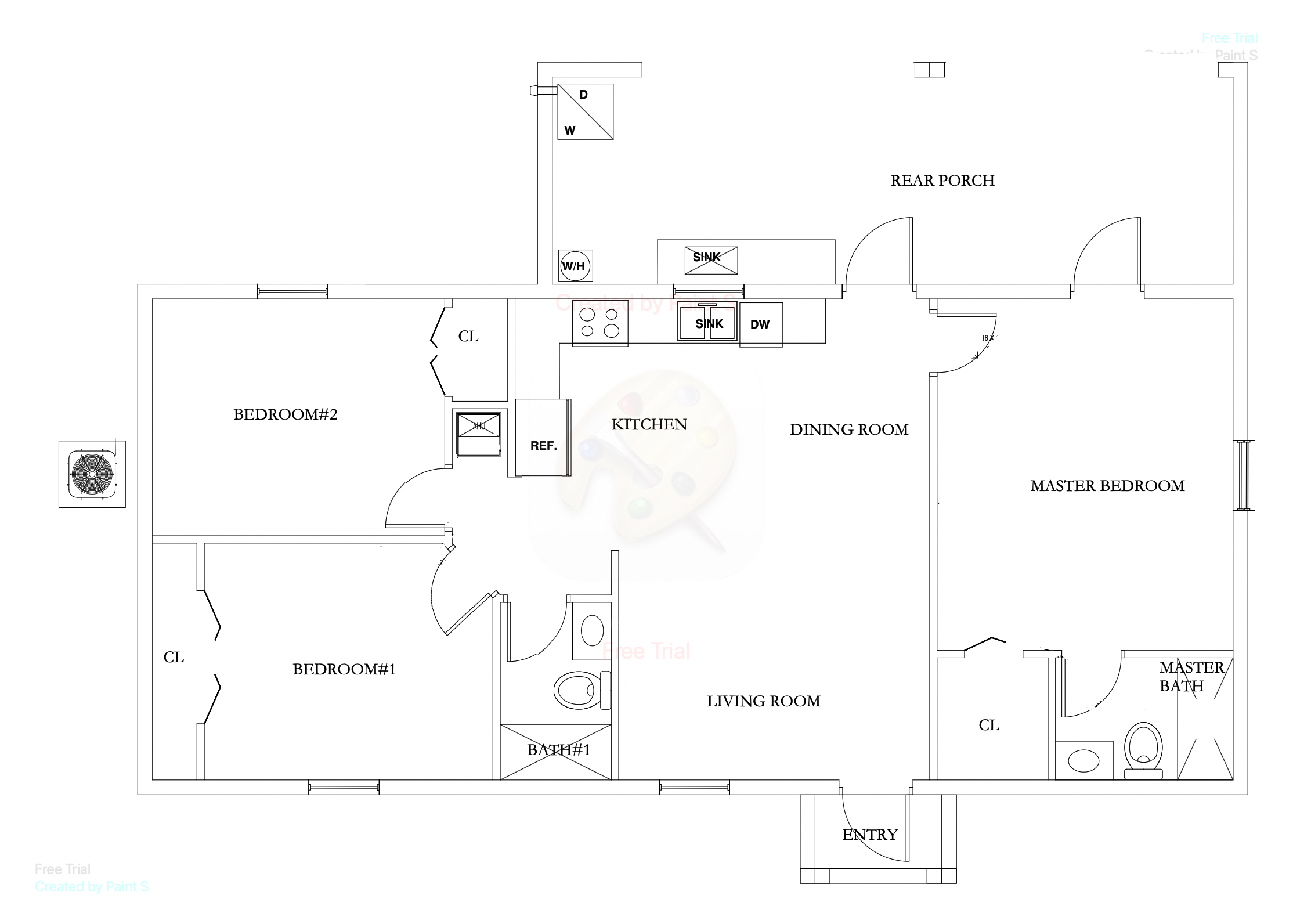
Approx. Living Area: 1150 – Architectural Plans Bedrooms: 3 Bed
Approx. Total Area: 1500 – Architectural Plans Baths: 2 (2 0)
Building Design: Single Family
Property Description:
Featuring 3 bedrooms and 2 bathrooms, a spacious backyard perfect for outdoor enjoyment, window treatments, stainless steel appliances, and glossy porcelain tile flooring throughout. The large covered terrace with an outdoor kitchen is ideal for entertaining family and friends.
A unique opportunity you don’t want to miss!
INTERIOR
- Front Door impact glass and aluminum.
- Two panel modern interior door & bi-fold doors in all bedrooms closets.
- 5-1/4″ Baseboard.
- Skip trowel finish on walls & ceilings.
KITCHEN
- Stainless steel appliances: 22cu.ft. Side by side refrigerator with ice & water dispenser, self-cleaning cook top range, over the range microwave oven & dishwasher.
- Double bowl stainless steel under mount sink
- Moen single lever faucet
- 36″ wood cabinets with adjustable shelves
- Slow motion drawer
- Pre-plumbed ice maker line
BATHROOMS
- Granite countertops (level ) with 4″ backsplash with under mount sink
- Wood cabinets
- Moen faucet & shower heads
- Vanity mirror with light fixture
- Shower with wall surround in master bath (per plan)
- Frameless shower enclosure with clear glass in master Bath (per plan)
- Soaking tub in the master bath (per plan)
- Level 1 ceramic tile in master Bath shower
- Exhaust fans vented to exterior
ENERGY SAVERS
- R-30 Ceiling insulation
- Wall insulation R-11
- Block insulation R-4.1
- High Efficiency 16 SEER air conditioning system
- Tankless water heater
ELECTRICAL
- Decorative light fixtures in the foyer and dining room
- Light fixtures in the bathrooms
- Smoke detectors per code
- Pre -wired ceiling fan outlets in all bedrooms and family room (per plan)
- Pre wired for TV outlets (per plan)
- Exterior water proof electrical outlets (per plan)
- Decorative coach lights
EXTERIOR & BUILDING FEATURES
- Soil treatment under slab for termite protection
- Vapor barrier under slab
- Steel Reinforced poured concrete or monolithic foundation(per plan)
- Poured Steel Reinforced Concrete Tie Beam
- Steel enforced concrete block wall
- Insulated, aluminum windows with locks and screens (Except lanai)
- 30 years fiberglass dimensional shingles roof
- One exterior hose bib
- Impact windows and doors
- Stucco soffit
HOME SITE
- All building permits & impact fees include in effect at time of contract
- Survey engineering and field testing
- Lot preparation included ($12,000 allowance)
- Exotic vegetation removal & wetland issues not include
- Septic System or City sewer & water hook up
- Well water & pump system
- Up to 40’ House Set-Back with base rock driveway & concrete parking pad (per plan)
- Professionally Landscape package with Bahia sod around residence
- Sprinkler System
- Features and specifications are subject to change without notice



